点击这里给我发消息
点击这里给我发消息
产品中心|Product
首页>>产品展示

产品中心

返回目录
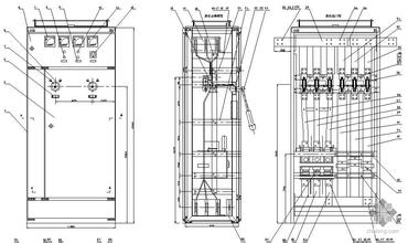
GGD模型图

GGD主要参数:

     1、主电路方案GGD柜的主电路设计了129个方案,共298个规格(不包括辅助电路功能变化及控制电压的变化而派生出的方案和规格):

    GGD1:49个方案,123个规格GGD2:53个方案,107个规格GGD3:27个方案,68个规格主电路方案是征求了广大设计、使用部门的意见选编的,增加了发电厂需要的方案。额定电流增加到3150A,适合2000KV以下的配电变压器选用。

    此外,为适应无功补偿的需要设计GGJ1、GGJ2电容补偿柜,其主电路方案4个,共12个规格。

    2、辅助电路方案辅助电路的设计分供用电方案和发电厂方案两部分。GGD柜内有足够的空间安装二次元件,同时NLS还开发研制了专用的LMZ3D型电流互感器以满足发电厂和特殊用户附设继电保护时的需要。

    3、主母线考虑到价格比和以铝代铜的可行性,额定电流在1500A及以下的时采用单铝排母线,额定电流大于1500A时采用双铜排母线,生产厂按此规定制造样机并通过型式试验。生产厂也可根据用户要求将铝母线换成同等载流量的铜母线。

    母线的搭接面均采用搪锡工艺处理。

    4、电器元件选择A、GGD柜主要采用国内已能批量生产的较先进的电器元件,如MB、DZ20、DW15等,同时也根据经济、合理的原则,在充分考虑可行性的前提下保留了部分可用的老产品如DZ10等,不选用已淘汰的电器元件。

    B、HD13BX和HS13BX型旋转操作式刀开关是NLS为满足GGD柜独特结构的需要而设计的专用元件,它改变了机构的操作方式,保留了老产品的优点,是一种实用新型的电器元件。

    C、如设计部门根据用户需要,选用性能更优良、技术更先进的新型电器元件时,因GGD具有良好的安装灵活性,一般不会因更新电器元件造成制造和安装方面的困难。

    D、为进一步提高主电路的动稳定能力,NLS设计了GGD柜专用的ZMJ型组合式母线夹和绝缘支撑件。母线夹由高强度、高阻燃型PPO合金材料热塑成型,绝缘强度高、自熄性能好和结构独特,只需调整积木式间块即可方便地组合成单母线夹或双母线夹,绝缘支撑是套筒式模压结构,成本低、强度高,解决了老产品爬电距离不够的缺陷。